Mẫu xây thiết kế Nhà 400 triệu đẹp sang trọng

Mẫu xây, thiết kế Nhà 400 triệu đẹp

Bạn đang dự định xây nhà nhưng không biết chi phí dự phòng bao nhiêu? Những mẫu thiết kế như thế nào là hợp lý? Bài viết dưới đây xây dựng Hcons sẽ giới thiệu đến bạn những mẫu xây thiết kế Nhà 400 triệu đẹp 

Kinh phí thiết kế nhà đẹp 400 triệu tiết kiệm – Mẫu xây thiết kế Nhà 400 triệu đẹp

Nhà đẹp 400 triệu thường hướng đến những mẫu nhà 2 tầng có từ 2-3 phòng ngủ. Tuy nhiên muốn công trình thực sự khang trang, đẹp đẽ thì bạn phải có kế hoạch kinh phí hợp lý.

Diện tích đất xây dựng

Quy mô xây dựng nhà quyết định lớn đến việc bạn có thể sở hữu ngôi nhà rộng hay hẹp. Có thể đủ nhu cầu sinh hoạt cho các thành viên hay không.

Các kiến trúc sư giàu kinh nghiệm đã chỉ ra, muốn xây nhà 400 triệu không phát sinh. Thì diện tích xây dựng ổn nhất là 40m2/mặt sàn, 2 tầng sẽ trong khoảng 80m2.

Bạn không nên xây nhà quá lớn, dù bạn sở hữu mảnh đất rộng. Điều này không những giúp bạn tiết kiệm được chi phí nguyên vật liệu mà còn trang bị nội ngoại thất về sau

Vật liệu xây dựng

Dù tiết kiệm tối đa thì bạn vẫn cần ưu tiên lựa chọn nguyên vật liệu tốt. Để trong quá trình xây dựng đảm bảo độ bền, an toàn của ngôi nhà.

Điều kiện kinh tế eo hẹp, vậy bạn có thể giảm bớt chi phí khi mua sắm nội thất để tập trung và vật liệu. Những thứ này có thể thay thế trong quá trình sử dụng mà không ảnh hưởng đến tuổi thọ công trình. Tất nhiên, gia đình bạn vẫn đảm bảo sở hữu đồ đồ đạc ở mức khá so với những thiết kế nhà 300 – 350 triệu, đừng lo lắng quá nhé!

Nội ngoại thất nhà 400 triệu

Phải làm sao đây khi chúng ta cần tối ưu chi phí cho nội ngoại thất. Hãy ghi ra giấy những gì thật sự cần thiết thôi bạn nhé, ưu tiên món đồ tiện nghi, đơn giản.

Trên thị trường có nhiều cửa hàng bán đồ ngoại thất, chịu khó mất thời gian tìm hiểu một chút, bạn sẽ mua được sản phẩm tốt mà có giá thành vừa phải. Hoặc để tiết kiệm hơn nữa, bạn có thể mua đồ thanh lý được bán trên mạng. Có nhiều đồ trang trí nội ngoại thất chất lượng nhưng giá chỉ còn ½.

Dự trù kinh phí xây dựng

Ngay bây giờ, chúng tôi sẽ đưa ra một bảng dự trù kinh phí cụ thể khi xây nhà 400 triệu để bạn tham khảo. Tùy thuộc vào tình hình tài chính hiện tại hãy “cân đo” một cách hợp lý để xây được ngôi nhà trong mơ mà không phát sinh thêm nhé.

Ví dụ ngôi nhà của bạn mặt tiền 5m, chiều sâu nhà 20m, diện tích sàn là 100m2. Để lại khoảng 3m đất đằng trước và 1m đất đằng sau ngôi nhà để làm sân thì chiều sâu xây dựng còn lạ sẽ là 16m.

Dự kiến ngôi nhà của bạn sẽ xây cấp 4 với 2 phòng ngủ, 1 phòng khách, 1 phòng bếp ăn, 2 nhà vệ sinh.

Hạng mục xây dựng

Dự trù chi phí

Chi phí nhân công xây dựng 1,5tr/m2 x 90m2~135tr
Chi phí vật liệu cho xây dựng phần thô (sắt, thép, đá, cát…) ~250 triệu
Chi phí trang trí nội ngoại thất ~70 triệu
Tổng chi phí 455 triệu

Hoặc bạn có thể lựa chọn xây thô trọn gói, đơn giá hiện nay trong khoảng 4-5tr/m2

Chi phí xây dựng = 4,5tr/m2 x 90m2~405 triệu, cộng thêm chi phí nội thất thì cũng tương đương.

Kiến trúc nhà 400 triệu 1 tầng – Mẫu xây thiết kế Nhà 400 triệu đẹp

Thiết kế nhà ống 1 tầng 400 triệu cũng đang là một kiến trúc nhà ở được nhiều người quan tâm đặc biệt là các khu vực thành phố, đô thị có diện tích hẹp

Nhà dạng ống hạn chế về chiều ngang,  dài về chiều sâu, thường có một mặt tiền duy nhất. Ưu điểm của thiết kế mẫu nhà ống 1 tầng đơn giản, dễ xây dựng nên với chi phí 400 triệu thì mẫu nhà này là một trong những gợi ý không thể bỏ qua.

Kiến trúc nhà 400 triệu 1 tầng
Kiến trúc nhà 400 triệu 1 tầng

Mẫu nhà cấp 4 có gác lửng 400 triệu đồng – Mẫu xây thiết kế Nhà 400 triệu đẹp

Mẫu nhà cấp 4 có gác lửng nhằm tăng không gian sử dụng mà không tốn quá nhiều chi phí xây dựng. Tầng lửng có thể tận dụng là nơi nghỉ ngơi đảm bảo sự riêng tư trong khi tầng trệt phía dưới làm không gian sinh hoạt. Tổng hợp nhiều ưu điểm nên đây được xem là kiến trúc nhà 400 triệu đáng để lựa chọn.

Mẫu nhà cấp 4 có gác lửng 400 triệu đồng

Mẫu thiết kế kiến trúc nhà 400 triệu mái thái đẹp – Mẫu xây thiết kế Nhà 400 triệu đẹp

Nhà cấp 4 mái thái là một trong những xu hướng thiết kế được ưa chuộng và không bao giờ lỗi mốt bởi sự sáng tạo, kết hợp của các kiến trúc sư. Mẫu nhà mái thái 400 triệu có thể xây dựng ở quê, các vùng nông thôn hoặc xây thành nhà vườn đẹp, làm nơi nghỉ dưỡng cho cả gia đình.

Mẫu thiết kế kiến trúc nhà 400 triệu mái thái đẹp

Mẫu nhà ống 400 triệu đẹp mái lệch – Mẫu xây thiết kế Nhà 400 triệu đẹp

Thỉnh thoảng những thiết kế lạ mắt, chẳng hạn như nhà mái lệch làm bạn nghĩ sẽ mất nhiều tiền. Thực tế, xây nhà đẹp 400 triệu mái lệch được lựa sắm nhiều vì giá thành xây dựng thông minh. Hơn thế nữa, đường nét khỏe khoắn, giật cấp đã tạo ra xu thế xây dựng trong ngành kiến trúc.

Mẫu nhà ống 400 triệu đẹp mái lệch

 Nhà cấp 4 gác xép 400 triệu – Mẫu xây thiết kế Nhà 400 triệu đẹp

Vì sao nhà gác xép lại được ưa thích? Đó là do ko gian sử dụng tăng lên đáng kể nhưng ko tốn nhiều về giá thành xây dựng. Tầng lửng thường được tận dụng để làm nơi ngơi nghỉ, trong lúc tầng trệt làm ko gian sinh hoạt chung.

Nhà cấp 4 gác xép 400 triệu

Ngôi nhà sở hữu gác xép giá 400 triệu này đậm vẻ đẹp truyền thống. Hình ảnh mái ngói đỏ tươi, trụ cột vuông, cửa gỗ kính, phần mái sở hữu thêm cửa sổ nhỏ làm bạn ngây ngất. Nhìn chung để hoàn thiện về cả nội ngoại thất thì sẽ tốn thêm khoảng tầm 100 triệu nữa.

Thiết kế nhà đẹp 400 triệu sở hữu gác xép mang phong cách tiên tiến. Tông màu chủ đạo của nhà là màu xám ghi. Phần mái thái giật cấp chữ A, cửa sổ bằng kính sở hữu thêm mái bên trên đã tránh được tình trạng hắt mưa vào nhà, song song giúp tạo ra ko gian sống thật tiện nghi.

Ngôi nhà nằm trong khuôn viên ko quá rộng to, nhưng đủ để xây dựng nên công trình nhà cấp 4 và dư ra khuôn viên nhỏ làm nơi thư giãn. Hệ lam bằng gỗ mát mẻ làm ai nấy đều cảm thấy thích thú. Đặc trưng, ngôi nhà cấp 4 400 triệu nhưng phần mái hoành tráng và vững chãi, để làm điểm tựa cho tầng lửng bên trên.

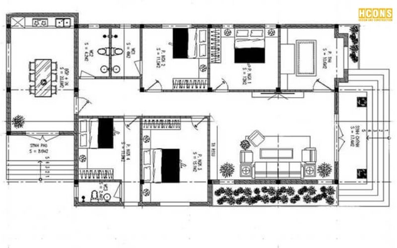
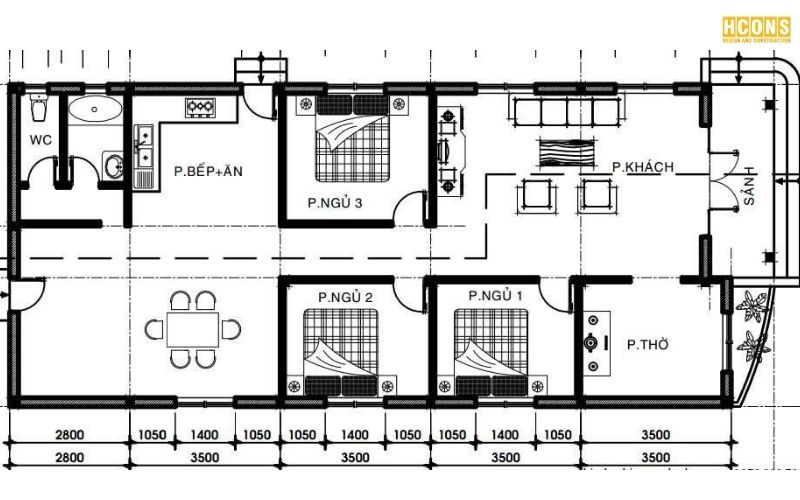
Bộ sưu tập các bản vẽ nhà cấp 4 400 triệu thông dụng – Mẫu xây thiết kế Nhà 400 triệu đẹp

Mẫu nhà giúp bạn dễ dàng hình dung được công trình trên thực tế, nhưng để xây dựng, chuẩn bị đầy đủ nguyên vật liệu và dự trù chi phí chuẩn xác thì bạn cần sử dụng đến bản vẽ.

Dưới đây là một số bản vẽ nhà cấp 4 thông dụng trong khoảng giá 400 triệu để bạn tham khảo:

Lưu ý: Bạn phải biết được các ký hiệu viết tắt trong bản vẽ xây dựng thì mới đọc – hiểu được các bản vẽ nói trên.

Tất cả các bản vẽ nói trên chỉ mang tính chất tham khảo. Đối với bản vẽ nhà cấp 4 400 triệu thì bạn nên thuê kiến trúc sư tự thiết kế dựa trên tình hình thực tế về chi phí, diện tích, thế đất và mong muốn của bạn thì sẽ phù hợp hơn.

Đơn vị thi công mẫu xây thiết kế Nhà 400 triệu đẹp

Nếu bạn đang có nhu cầu tìm kiếm nhà thầu xây trọn gói nhà cấp 4 đẹp 400 triệu thì Xây Dựng Hcons là sự lựa chọn tối ưu cho bạn.

  • Đến với chúng tôi, bạn sẽ được tư vấn chu đáo, kỹ lưỡng bởi:
  • Đội ngũ kỹ sư, kiến trúc sư giàu nhiều năm,
  • Hỗ trợ nhiệt tình tư vấn cho khách hàng nhanh chóng lên được phương án hoàn chỉnh nhất.
  • Đặc biệt, chúng tôi hoàn toàn cam kết hoàn thành công trình đúng thời gian ký kết trong hợp đồng với chất lượng tốt.
  • Chi phí  phải chăng, đồng thời không phát sinh thêm chi phí phụ khác.

Hy vọng rằng những thông tin trong bài viết đã mang đến cho quý bạn  những thông tin hữu ích khi lựa chọn phương án Mẫu xây thiết kế Nhà 400 triệu đẹp. Nếu còn bất kỳ thắc mắc nào, bạn hãy liên hệ tới chúng tôi để được tư vấn hỗ trợ nhiệt tình nhất.

THÔNG TIN LIÊN HỆ 

  •  Địa Chỉ: 268B Điện Biên Phủ, Huế
  •  Hotline: 0901 148 111 – 0985 106 734
  •  Email: dautuxaydunghcons@gmail.com
  •  Website: www.xaydunghcons.vn

>>Mời bạn xem thêm:

 

Rate this post

Để lại một bình luận

Email của bạn sẽ không được hiển thị công khai. Các trường bắt buộc được đánh dấu *